Керамическая печь BELFAST

Артикул: 93125
коричневый правая
Артикул: 93124
коричневый левая
Артикул: 93126
зеленый левая
Артикул: 93127
зеленый правая

Мощность 10 кВт
Бренд ABX (Чехия)
Расположение в помещении пристенное
Дизайн и исполнение изразцовая печь-камин
Теплообменник Нет
Опции каминов и печей вторичный дожиг, дровник, система чистое стекло, наличие дымосборника топки
Способ открытия дверцы распашная
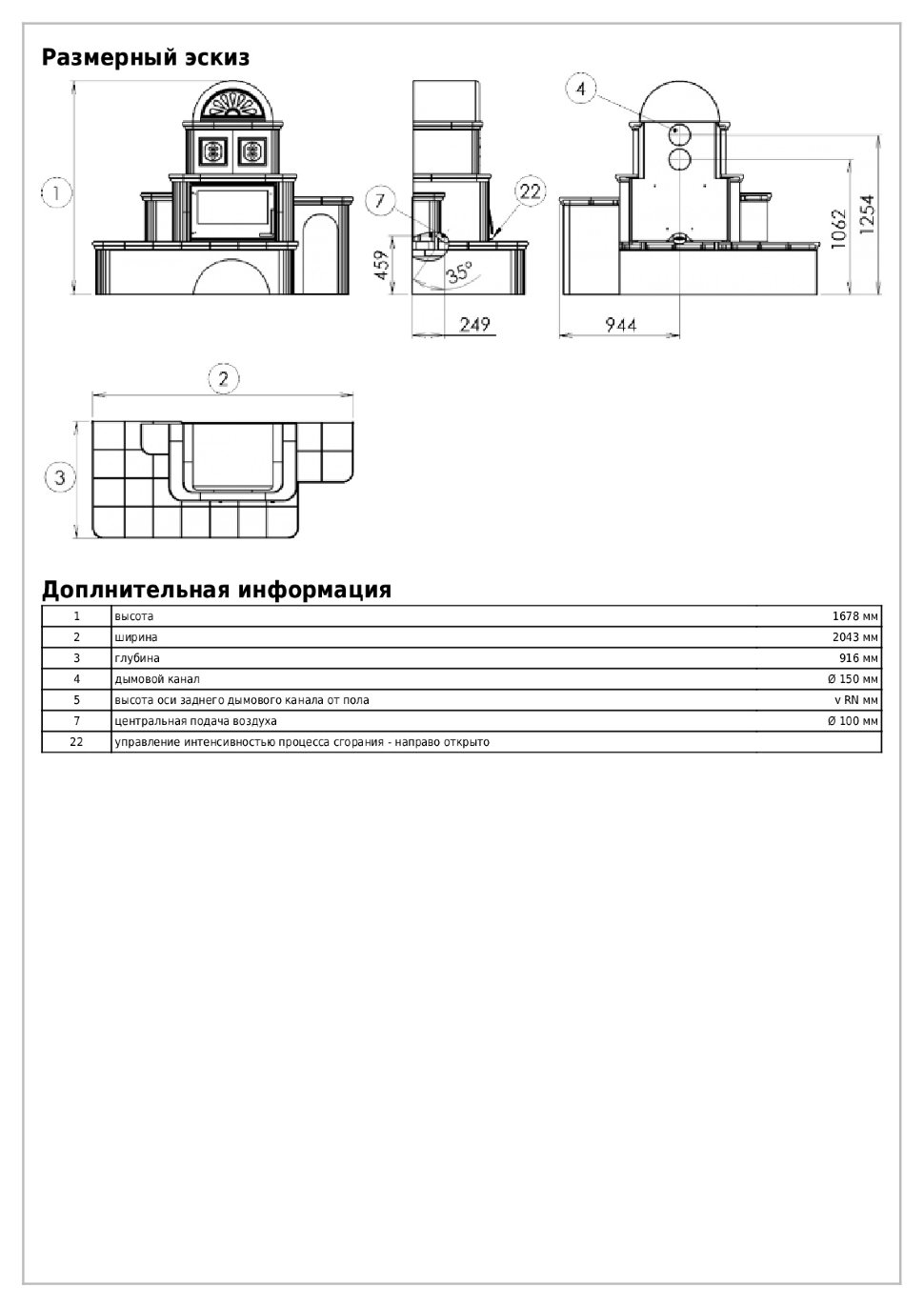
Диаметр дымохода, мм 150
Наличие балки нет
Высота каминокомплекта, мм 1678
Ширина каминокомплекта, мм 2043
Глубина (габарит без ручки), мм 916
Тип нагревания конвекционный
Материал облицовки кафель, изразцы
Форма стекла и дверей прямая
Вид топлива дрова
Футеровка вермикулит
Наличие зольника классический(выдвижной)
Максимальная длина дров, мм 480
Материал изготовления топки сталь
Присоединение дымохода задний
КПД, % 71.3
Вес, кг 375 кг

Производитель

ABX (Чехия)

Пролистать наверх