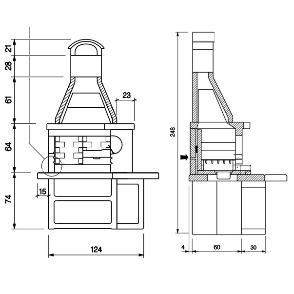
Барбекю из бетона с широкой столешницей, столешница из Marmotech с отделкой “состаренный” серый гранит. Огнеупорная топка с боковой жаровней и ограничителем для дров. Металлическая вставка в духовке. Гриль-решетка Bio из нержавеющей стали, 76х40 см. Зольник с системой “fast-fire-box”.






